家主様
管理物件
リノベーション
会社案内
お問合せ
空室情報
HOME
リノベーション・プランニング
近江八幡 賃貸マンション
近江八幡 賃貸マンション
PLAN
CONCEPT
INFORMATION
電話でお問い合わせ
メールでお問い合わせ
PLAN
CONCEPT
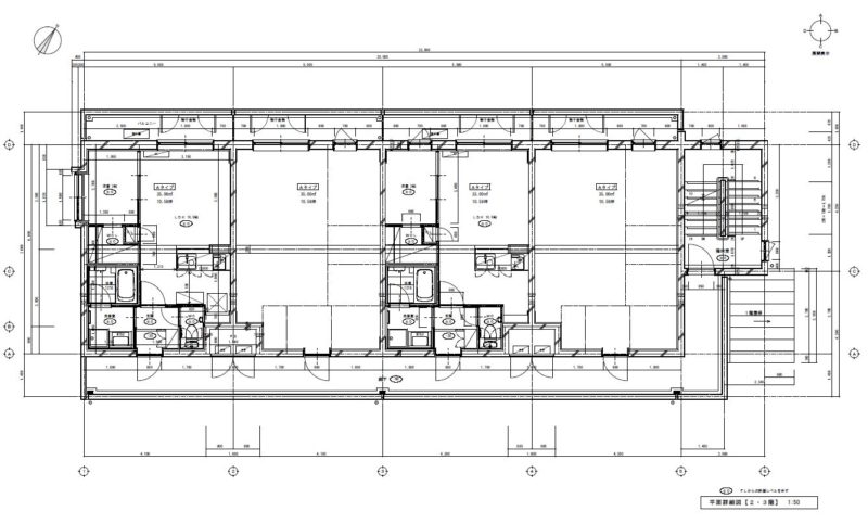
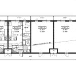
JR近江八幡駅徒歩5分の好立地の売地を購入されたオーナー様から収益物件のご相談を受け、プランをご提案いたしました。
INFORMATION
プラン種別
新築マンションプランニング
構造
鉄筋コンクリート造(RC造)
面積
70.0㎡/35.0㎡
築年数
2019年2月
備考
その他
プランや間取りなどの詳細はお手数ですがお問合せください。